Atrium Proton Therapy Center Front door

Atrium Health Proton Center

Project Location: Charlotte, North Carolina

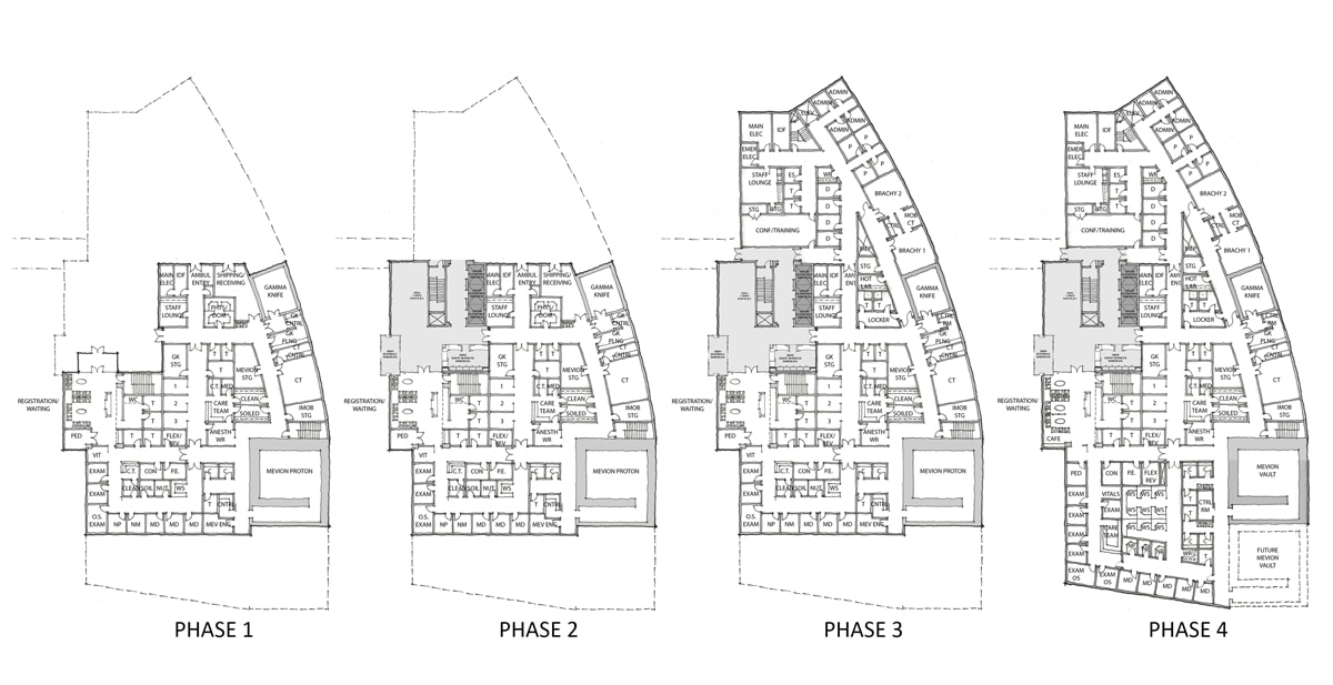
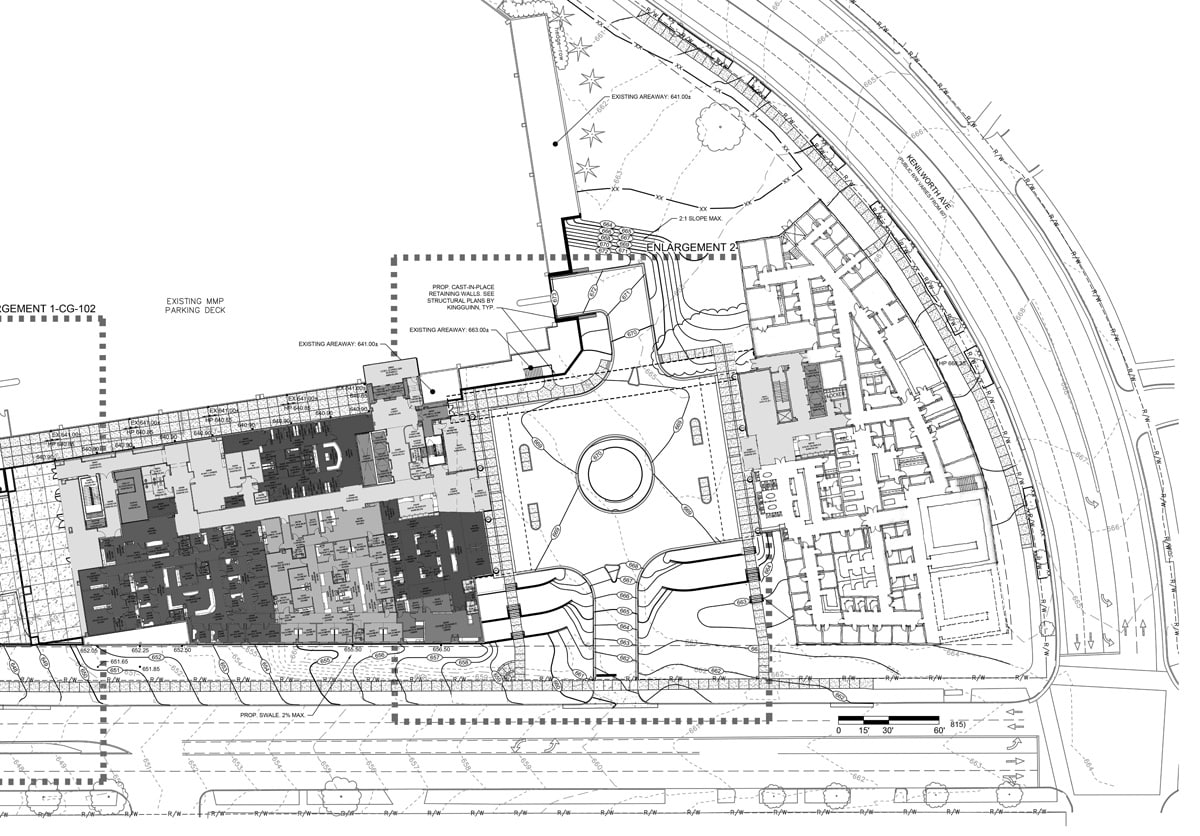
Completed in 2023, the Center for Advanced Radiation Therapy at Atrium Health’s Levine Cancer Institute is the first proton therapy system in the Carolinas. The center includes a Mevion S250i Proton Therapy System with Hyperscan Pencil Beam Scanning. It also includes a Gamma Knife suite and an additional future Mevion proton vault.

In collaboration with Architect-of-Record e4H Architecture, John Jessen led programming, planning and design. The project was designed to be constructed in phases, providing future growth with a 7-story outpatient tower strategically placed above the proton center.

Planning and design by John Jessen, renderings by Architect-of-Record e4H.

Services Provided

Full Service Design

We design proton therapy centers that seamlessly integrate hundred-ton particle accelerators with 14-foot concrete shielding, creating healing environments for patients and efficient workflows for staff.

Subject Matter Expert Advisory

As the world's leading proton therapy architects, we guide your decisions with experience that saves time, money, and prevents costly mistakes.

Feasibility Studies

We analyze your site conditions, financial parameters, and operational requirements to determine whether your proton therapy center vision is buildable and sustainable.

John Jessen

About John Jessen

John Jessen, AIA has over 40 years of experience helping people execute proton therapy projects worldwide. In 1994, he started and ran VOA (now Stantec) Proton Therapy Practice in Washington DC, and over the decades he built the largest proton design team in the world.

More Projects

University Miami Proton Therapy Center Exterior

University of Miami Dwoskin Proton Therapy Center

Miami, Florida
UCSF proton Therapy Center Nigh time

UCSF Proton Therapy Center

San Francisco, California